Contact us for more information
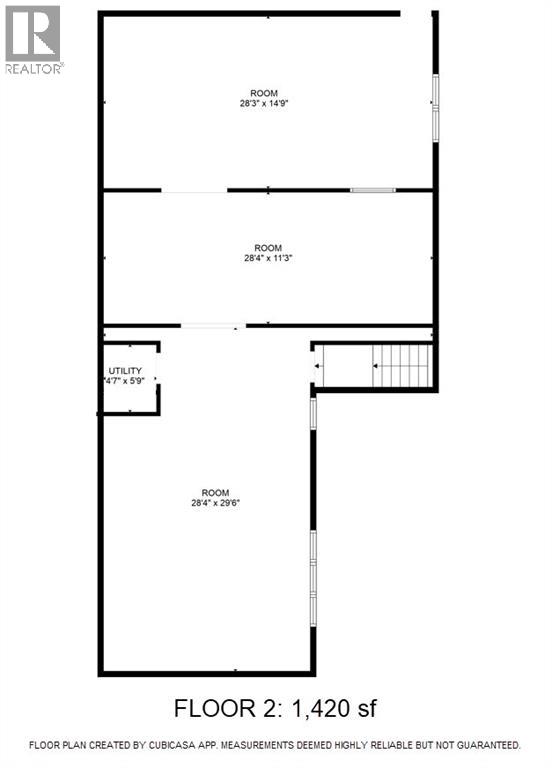
Discover the potential of this freestanding industrial building on 0.76 acres, offering 7,314 sq. ft. of main floor space plus a 1,420 sq. ft. mezzanine—perfect for storage, offices, or future expansion. Zoned General Industrial, the property supports a wide variety of business uses, making it highly adaptable for owner-occupiers or investors alike. Functional loading is provided with both an 8' x 8' truck-level loading door and a 12' x 14' drive-in door, ensuring efficient shipping and receiving. A rare opportunity to purchase a versatile and well-designed industrial facility in Barrie’s thriving South East end. Also Available for lease, being sold Vacant. (id:58919)
| MLS® Number | 40771178 |
| Property Type | Industrial |
| Features | Paved Driveway, Industrial Mall/subdivision |
| Parking Space Total | 6 |
| Sign Type | Signband |
| Basement Type | None |
| Stories Total | 1 |
| Size Exterior | 8734.0000 |
| Size Interior | 8734 Sqft |
| Utility Water | Municipal Water |
| Acreage | No |
| Sewer | Municipal Sewage System |
| Size Depth | 143 Ft |
| Size Frontage | 112 Ft |
| Size Irregular | 0.76 |
| Size Total | 0.76 Ac|1/2 - 1.99 Acres |
| Size Total Text | 0.76 Ac|1/2 - 1.99 Acres |
| Zoning Description | Gi |
https://www.realtor.ca/real-estate/28888634/165-saunders-road-barrie